借りる長野県庁・法務局・家庭裁判所至近のオフィスビル「センターBOA」フロア分割工事実施します
長野市立図書館とホテル犀北館の間に位置する高スペックオフィスビル「センターBOA」
長野県庁・長野税務署・法務局・家庭裁判所に近く、近隣には法律事務所など「士業」関係事務所が多いエリア。
個人や少人数の事務所、来客や打ち合わせが多い業種に便利な以下のサービス付き
〇1階に有人受付カウンターあり。来客者の対応等、総合受付
〇1階エントランスはインターホン付きオートロック式でセキュリティにも配慮
〇1階に貸し会議室2室と喫茶ラウンジあり
〇タワーパーキング(駐車場/34台収容)を併設。来客用に平置き2台、タワーパーキング10台確保(30分間無料)
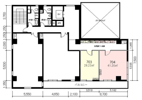
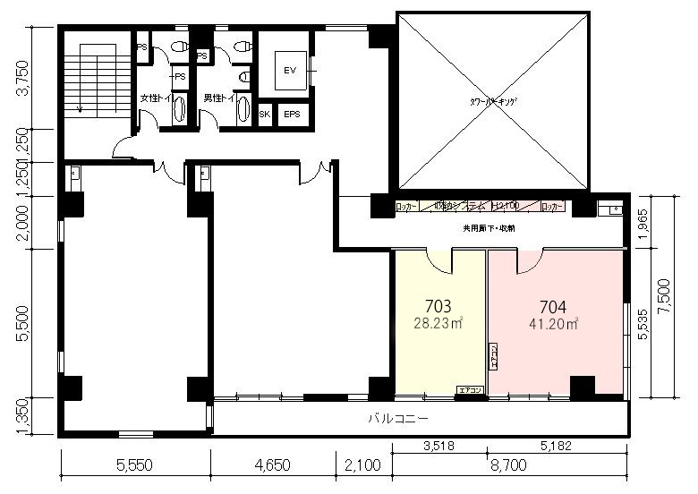
昨年、個人や少人数の事務所をお探しの方用に、フロアの小割化を実施。好評につき全区画成約いただきましたので追加で分割区画をつくることにいたしました。2017年1月完成予定
21坪を約8.5坪と12.5坪に分割します。また、限られた事務所面積を有効に使うため、スペースをとる収納(書庫・ロッカー)を共用廊下に予め設置し、使用いただけるよう計画。入居区画に応じ使用できる収納を割り振りさせていただきます。
※貸室面積には共用廊下・収納部の按分面積も含まれます。
703(8.5坪) 完成イメージ
704(12.5坪) 完成イメージ
【設備概要】 ・収納(403:900×2100㎜キャビネット2基+ロッカー、404:900×2100㎜キャビネット3基+ロッカー) ・エアコン ・ガス給湯器(共用) ・換気設備 ・LED照明 ・1階オートロック開錠用インターホン ・廊下、貸室入口にテナント名表示
完成している他フロアをご覧いただけます。詳細ご説明いたしますので是非ご連絡を。
募集中区画はこちら
