買う

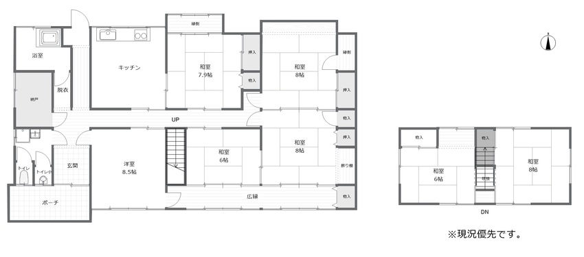
一戸建て信更町涌池中古住宅

田舎暮らしをしたい方におすすめ。長野市信更町涌池史跡公園の湖畔が近くにあり閑静な住宅街です。

物件名信更町涌池中古住宅
現況空き
入居可能時期相談
価格280万円
所在階 2階
間取タイプ4LDK〜 
土地面積 535.53㎡ (162坪)
用途地域指定なし
建蔽/容積60/200
所在地長野市信更町涌池3020
交通JR篠ノ井線 篠ノ井 距離16,700m
構造・規模木造
竣工年1968年08月
取引形態媒介