長野県庁や法務局、長野税務署、長野地方裁判所等行政関係施設がすべて徒歩圏の好立地。〇エントランスオートロック、〇有人受付カウンターにて総合受付、〇貸会議室 〇WorkPot(個室ブース)・ラウンジスペースありの高スペック物件
2023年11月 1F共用部(エントランスホール、受付、会議室、ラウンジ)大規模リニューアル実施
★オフィス家賃助成金対象ビル★ 詳細はこちら
| 物件名 | センターBOA ★家賃助成金対象★ |
|---|---|
| 所在地 | 長野市大字県町484-1 |
| 交通 | JR北陸新幹線「長野」駅 徒歩17分 |
| 用途 | 事務所・店舗 |
| 竣工 | 1994年03月 |
| 延床面積 | 2,351.76㎡ (711.41坪) |
| 基準階面積 | 228.37㎡(69.08坪) |
| 構造 | 鉄骨鉄筋コンクリート造 |
| 規模 | 地上8階建 |
| 基準階天井高 | 2,400mm |
| 取引形態 | 貸主 |
設備概要
- 空調方式
- 各階個別空調
- エレベーター
- 1基(9人乗り)
- 駐車台数
- 34台(タワーパーキング)来客用2台
- 設備その他
- 光ケーブル引込可, オートロック, エレベーター, 管理人, 都市ガス, 24時間換気システム, 新耐震基準, 給湯器・給湯室, 男女別トイレ, エアコン, 駐車場(近隣含む), 駐輪場, オフィス, 物販店舗
備考
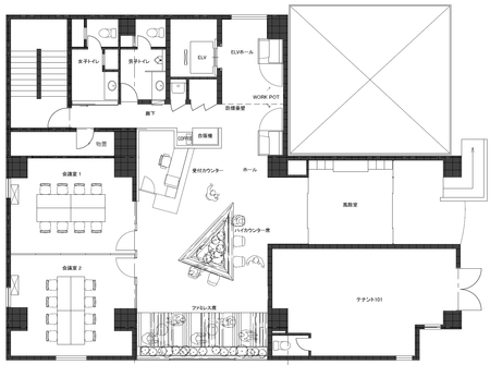
■ 有人受付カウンターにて来客者の対応等、総合受付をいたします。
■ ビルエントランスはオートロック式でセキュリティにも配慮しております。
■ 共用の会議室2室とWeb会議や集中作業用の個室ブース(WorkPot)2基配置
■ 緑をふんだんに取り入れたラウンジスペースをご用意しております。昼食や簡単なミーティング等にご利用いただけます。
■ 各室個別空調+換気設備で快適・安全にお過ごしいただけます。
■ タワーパーキング(駐車場/34台収容)を併設。
※近隣の駐車場もお探しします
■ エントランス前に来客者専用駐車場もございます。(30分間無料)
★オフィス家賃助成金対象ビル★ 詳細はこちら
