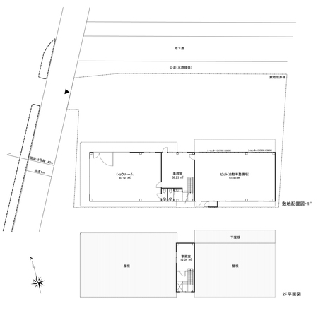
国道18号線(篠ノ井バイパス)沿いの路面物件 長野駅と上信越自動車道長野インターチェンジの中間地点に位置し交通アクセスも良く、視認性にも優れた立地。駐車場も平置きで10台以上確保できる貴重な物件です。
| 物件名 | 青木島貸店舗 |
|---|---|
| 所在地 | 長野市青木島町355−4 |
| 交通 | 長野駅から5.3km 長野I.Cまで4.4km |
| 用途 | 事務所・ショールーム・自動車整備工場 |
| 竣工 | 1997年3月 |
| 延床面積 | 234.75㎡ (71.01坪) |
| 基準階面積 | 213.75㎡(64.66坪) |
| 構造 | 鉄骨造 |
| 規模 | 地上2階建 |
| 取引形態 | 貸主 |
設備概要
- 空調方式
- 各室個別エアコン
- エレベーター
- なし
- 駐車台数
- 10台以上
- 設備その他
- 光ケーブル引込可, 1階, スケルトン, プロパンガス, 新耐震基準, 給湯器・給湯室, エアコン, 駐車場(近隣含む)
備考
敷地面積661.21㎡(200.01坪) ※市街化調整区域内の既存宅地に建築された建物の為、使用用途に制限がかかる場合があります。
